PROYECTOSDescripción

Aparcamiento Robotizado. Cuesta de la Atalaya, 3

Ubicación: Cuesta de la Atalaya, 3 - Santander
Estado: Finalizado
Año de Construcción: 2014
Modelo: LPS System
Capacidad: 38 plazas

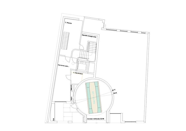
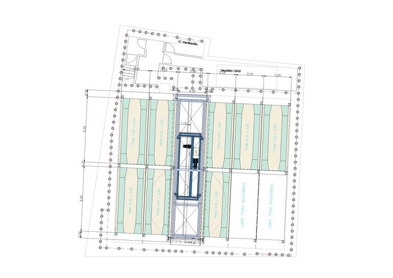
Aparcamiento totalmente robotizado bajo el edificio de 17 viviendas ubicado en Cuesta de la Atalaya, 3 de la ciudad de Santander. Es el primer aparcamiento robotizado instalado en Cantabria y fué entregado a principios de año a la empresa local Grupo Tecniobras promotor de este innovador proyecto.

Se trata de un sistema LP, distribuido en cuatro niveles de aparcamiento y con una capacidad para 38 plazas, todas ellas para coches de hasta 2,00 mts. de altura, en un volumen donde solo entraban 10 plazas convencionales con un montacoches. 

De esta manera Park-in y Stolzer suma otro proyecto en una capital española.


PROYECTOSMultimedia


Utilizamos cookies propias y de terceros para mejorar tu experiencia de navegación. Si continúas navegando consideramos que aceptas su uso. Más información ×