PROYECTOSDescripción

Aparcamiento Robotizado. Londres 33

Ubicación: Calle Londres 33 - Madrid
Estado: Finalizado
Año de Construcción: 2016
Modelo: LP System
Capacidad: 50 plazas

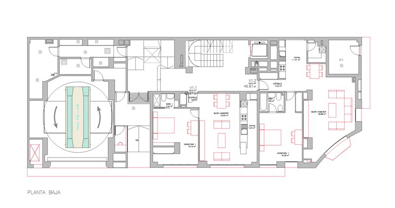
En el edificio de Calle Londrers 33 PARK-IN ha instalado un aparcamiento completamente robotizadas en el bajo rasante del edificio destinado a viviendas.
Se trata de un sistema LP sistribuido en cinco niveles de aparcamiento y con un total de 50 plazas para coches de 5,25mts de largo y 1,93 mts. de alto, la instalación cuenta con una cabina de transferencia que se ubica con acceso directo desde la calle Londres, posee una plataforma de giro en la cabina para entrega al coche en dirección de salida.


PROYECTOSMultimedia

Utilizamos cookies propias y de terceros para mejorar tu experiencia de navegación. Si continúas navegando consideramos que aceptas su uso. Más información ×